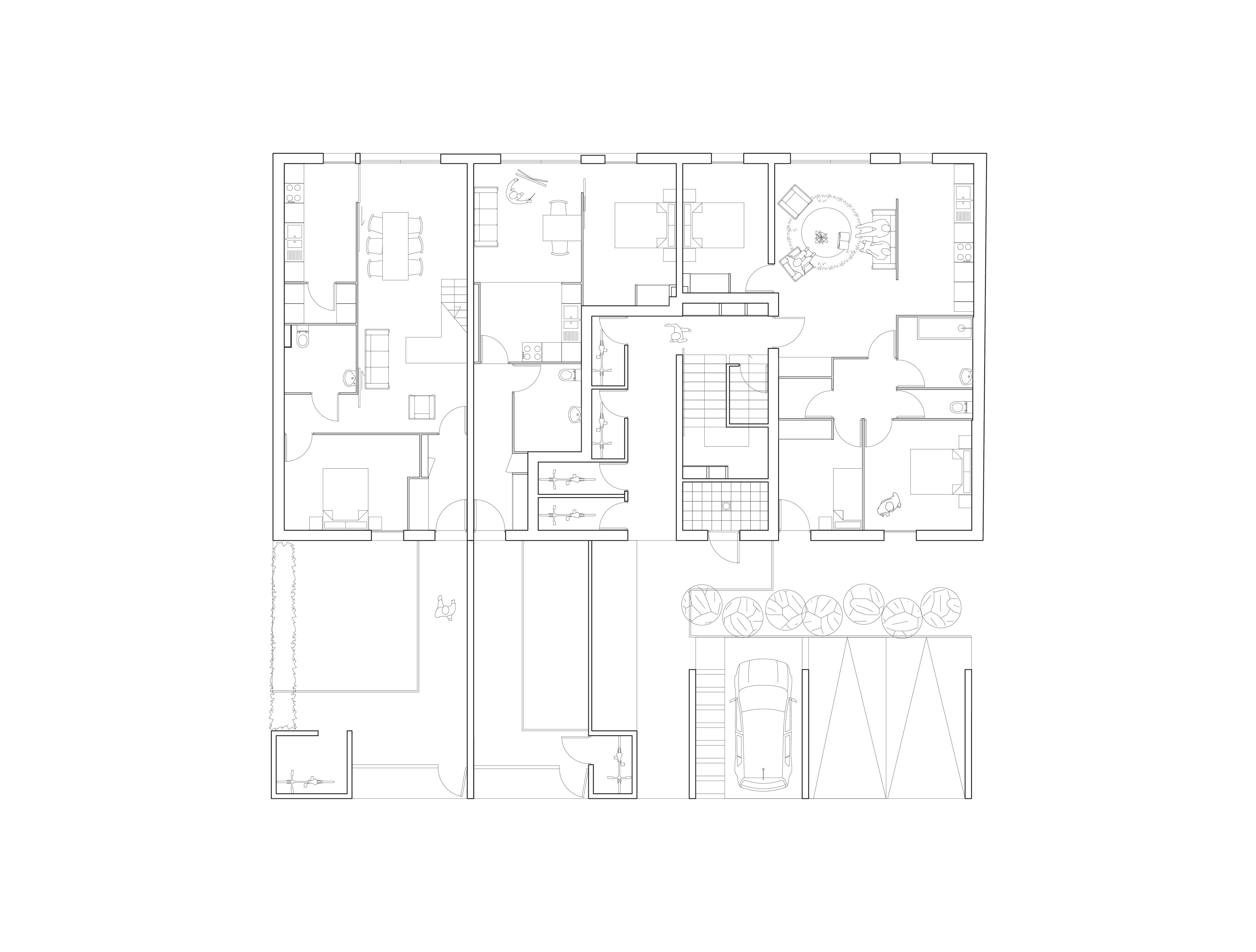
6 LOGEMENTS | Construction neuve
Programme : Logements sociaux
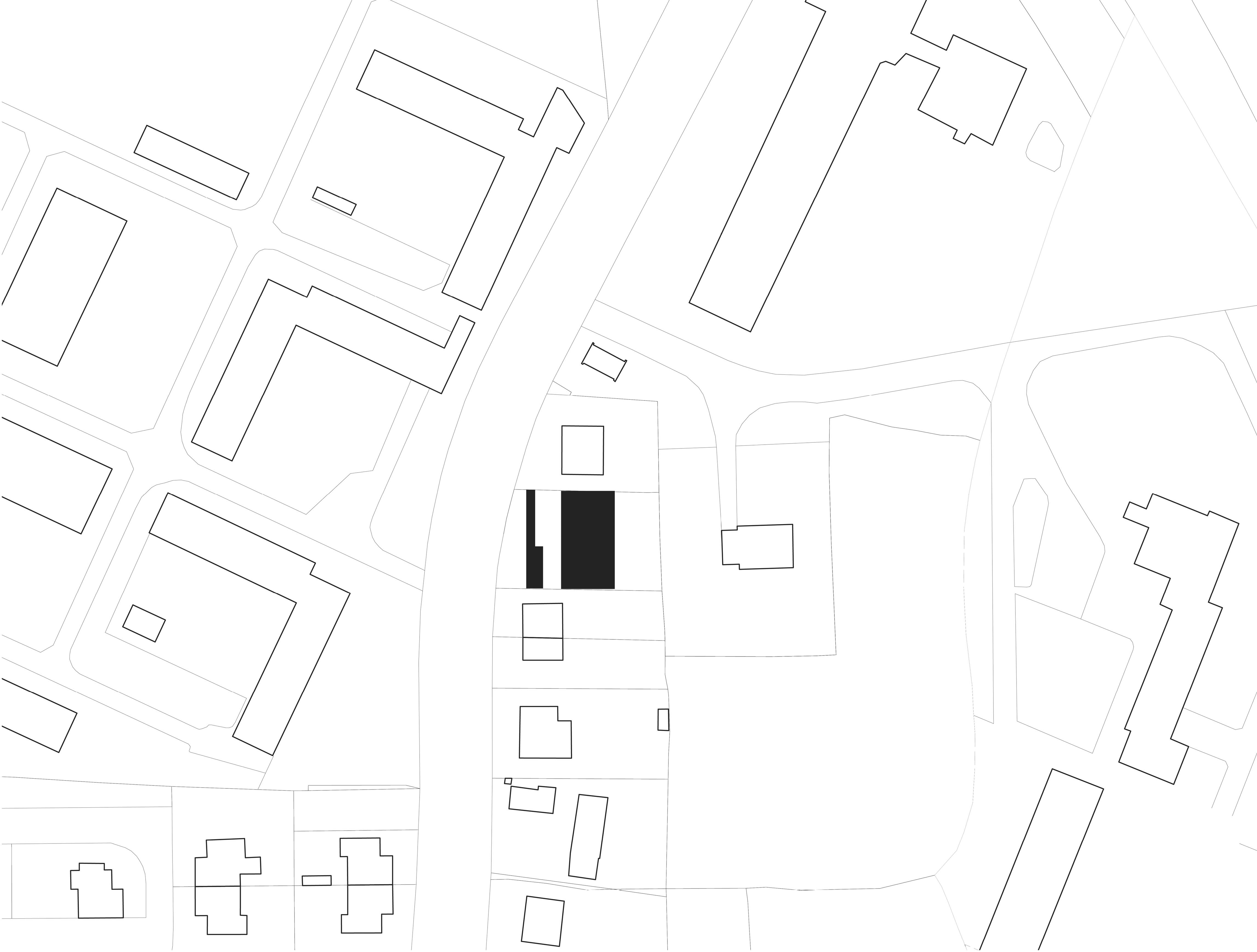
Site : Rennes - Rue Haut-Sancé (35)
Maîtrise d'ouvrage : 640 000 € HT - 467 m²
Équipe : Atelier 56S + BECB
Crédit photo : François Dantart
La commande nous amène à construire six logements sociaux à Rennes sur un terrain situé entre deux maisons pavillonnaires dans un quartier où pavillons et bâtiments de bureaux s’entremêlent. La forme et l’implantation du projet naissent de la relation entre le futur bâtiment et son environnement construit, afin d’en minimiser l’impact urbain. Pour cela, les gabarits sont travaillés pour s’aligner au faîtage des deux maisons voisines. Le programme demandait quatre logements sociaux et deux en insertion sociale. Pour ne pas différencier les logements d’insertion, nous avons décidé de regrouper l’ensemble des logements dans un bâtiment. Dans cette unité, nous intégrons à chaque logement les avantages d’un logement individuel : des logements traversants, de grandes ouvertures et de grands espaces extérieurs. Un système mixte béton/bois nous permet d’arriver au niveau thermique demandé en RT 2012 – 20%. Les ponts thermiques sont traités avec une isolation par l’extérieur et un bardage bois recouvre les façades Est et Ouest. La structure en béton est laissée apparente sur l’extérieur.















