SIÈGE SOCIAL ET BUREAUX | Réhabilitation et extension
Programme : Bureaux
Site : Chartres-de-Bretagne (35)
Maîtrise d'ouvrage : ASSIA - Réseau UNA
Coût et surface : 1 600 000 € HT - 1700 m²
Équipe : Atelier 56S + CdLP + BECB + Ouest Structures
Crédit photo : François Dantart
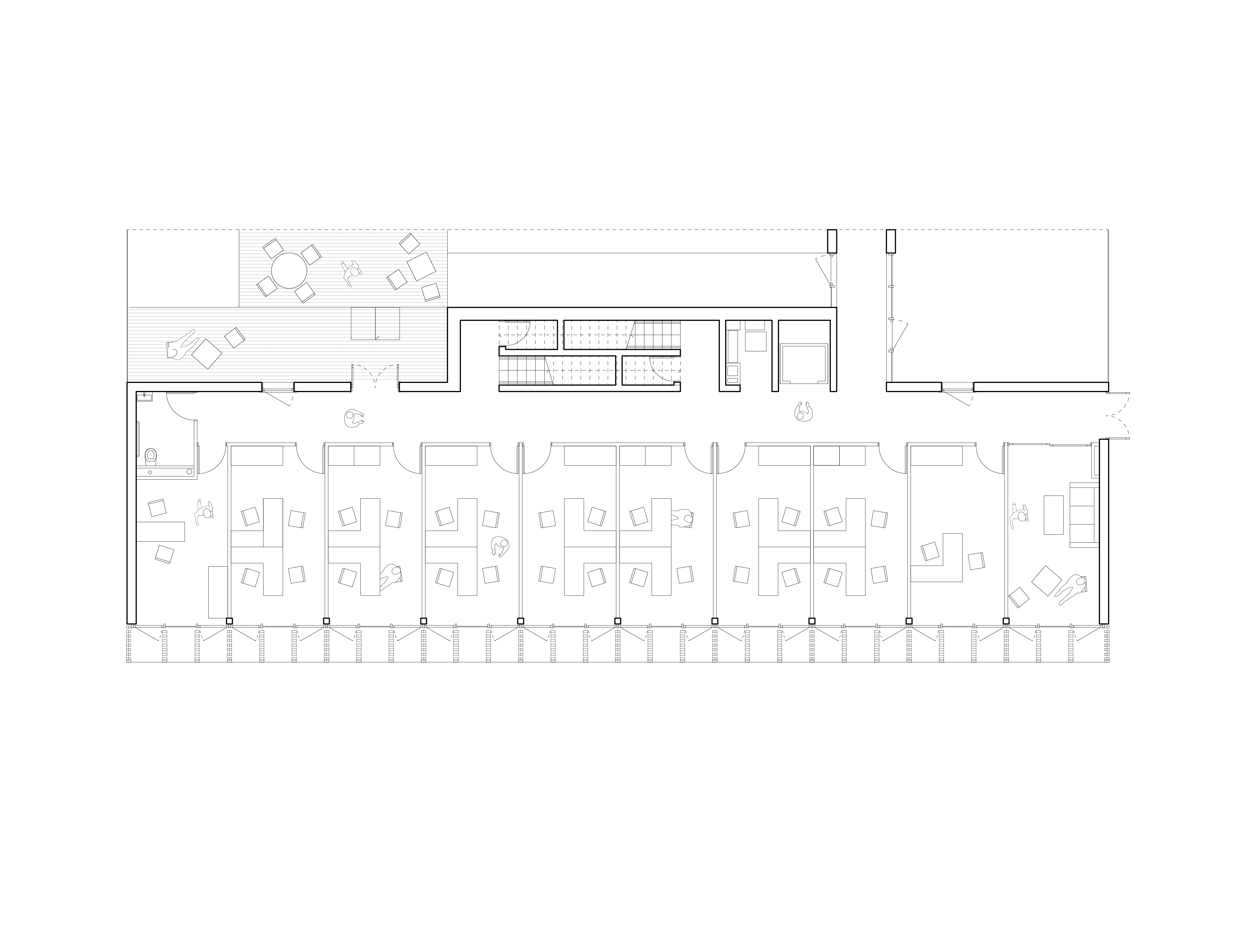
Le terrain disponible est de 600 m², il est orienté plein Sud, à l’arrière du siège existant d’ASSIA. L’extension s’élève sur 3 niveaux, développant ainsi une grande surface de plancher tout en préservant un maximum de terrain libre au sol. Cela permet la création d’un espace planté entre l’existant et l’entité bâti.
L’extension s’étire horizontalement, elle est organisée de la même manière sur les différents niveaux. Les nouveaux bureaux sont placés au Sud, bénéficiant ainsi d’un grand apport de lumière naturelle, ils sont protégés par une casquette de l’ensoleillement.
Le projet est entièrement construit en bois, avec un système poteaux poutres en bois et des plancher en CLT, le bardage bois est pré-vieilli.

























