50 LOGEMENTS COLLECTIFS | Construction neuve
Programme : Logements sociaux et BRS
Site : Rennes - ZAC La Courrzouze - Lot GP12 (35)
Maîtrise d'ouvrage : Néotoa
Coût et surface : 7 000 000 € HT - 4190 m²
Équipe : Atelier 56S + Solab + Ouest Structures + Origami + CdLP
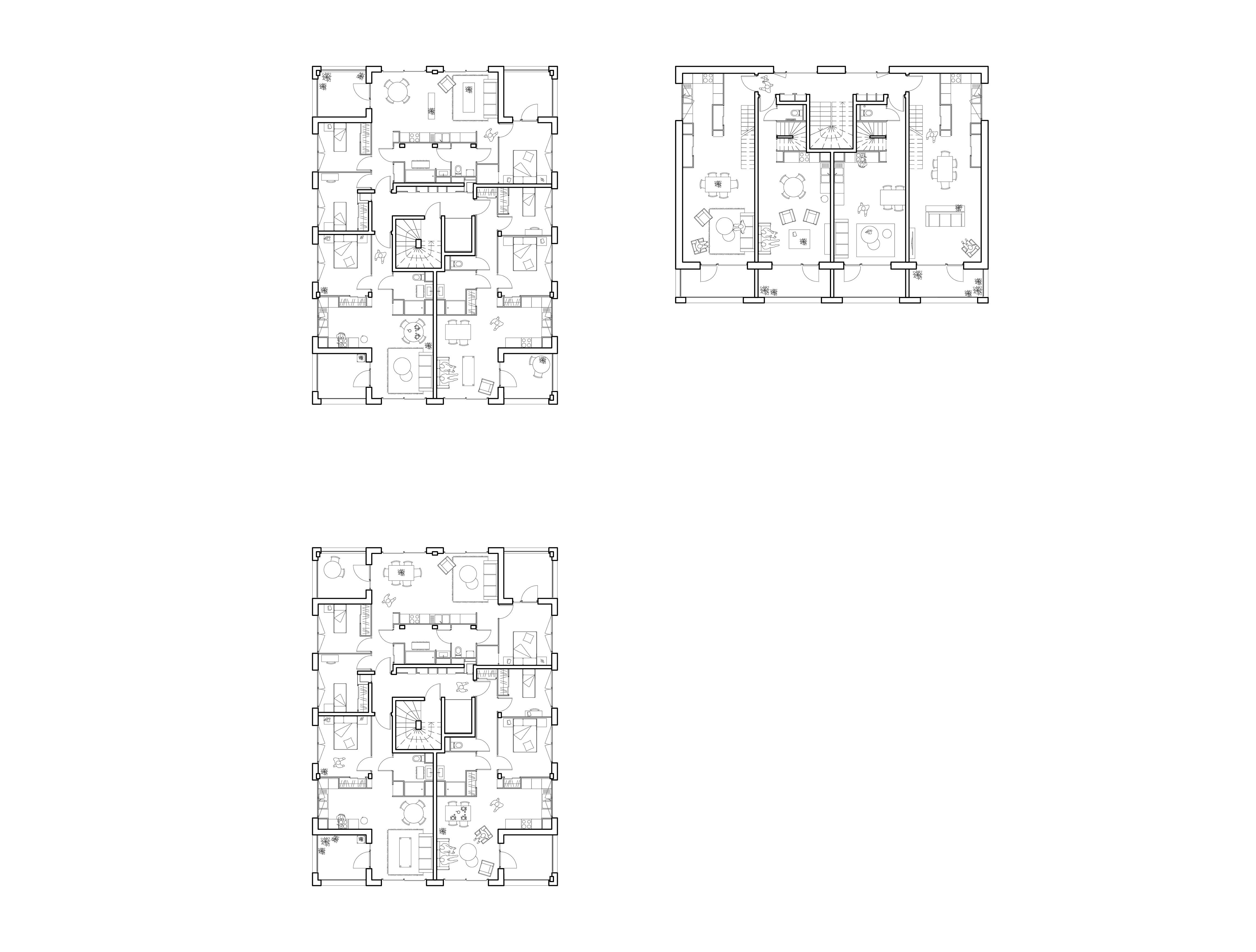
Au cœur de la ZAC de La Courrouze, dans le secteur Grandes Prairies le lot GP12 s’ouvre généreusement sur le parc à l’ouest. Composé de trois volumes liés par un socle commun, (stationnements automobiles et cycles), dont une tour en R+10, un bâtiment en R+6 et d’un dernier en R+4, le projet génère différents modes d’habiter. L’ensemble de l’îlot profite d’un socle paysagé en R+1, offrant une véritable qualité de vie et traitant l’intimité des logements de rez-de-chaussée. L’ensemble des logements disposent à minima d’une double orientation et d’un espace extérieur en loggias. Deux failles rythment les volumes et traitent les questions de vis-à-vis. Les logements des deux tours s’orientent dans toutes les directions afin de bénéficier des différentes vues sur le paysage. Le socle en béton, percé par de grandes ouvertures régulières, éclaire naturellement le parking. La structure porteuse est en poteau/dalle béton et les murs sont en ossature bois, isolé en laine de bois ou en paille pour le bâtiment en R+4. L’ensemble répond a des performances environnementales fortes, offrant aux habitants un confort de vie toute l’année.
















